SKLN 逆流式冷卻器 瀏覽量:7088 所屬類別:冷卻器系列
- 采用滑閥式復式排料機構(gòu),運行平穩(wěn),可靠,殘留小
- 能耗低,操作簡便
- 冷卻后成品溫度不高于室溫3-5℃
- 適合于顆粒物料的冷卻
上一篇:
SKLB4 擺式冷卻器
下一篇:
暫無
詳細描述
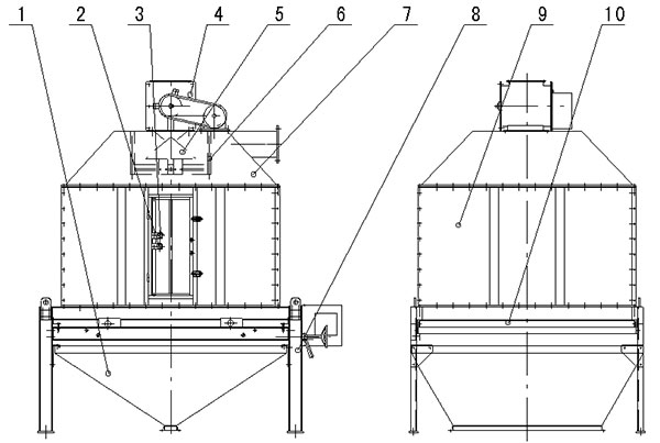
逆流式冷卻器主要結(jié)構(gòu):逆流式冷卻器的結(jié)構(gòu)主要由旋轉(zhuǎn)閉風喂料器、出風頂蓋、菱錐形散料器、冷卻箱體、上下料位器、減速剎車電機、偏心傳動滑閥式排料機構(gòu)、固定框調(diào)整裝置、集料斗、機架及吸風系統(tǒng)等組成。其工作過程是從制粒機中出來的高溫高濕度顆粒料,通過旋轉(zhuǎn)閉風喂料器,經(jīng)菱錐形散料器均勻地堆放在冷卻箱體中,冷風從冷卻箱體下面滑閥式排料機構(gòu)底部與集料斗上部空隙中全方位進入冷卻器,并垂直穿過料層與濕熱顆粒進行熱交換,后經(jīng)吸風系統(tǒng)吸出,從而使顆粒料得以冷卻。冷卻時間由上下料位器的位置來控制,當顆粒料層達到上料位高度時,電機接通開始排料,當顆粒料層低于下料位高度時電機停轉(zhuǎn),停止排料。電機停轉(zhuǎn)后,滑閥式排料機構(gòu)中活動框與固定框之間的相對位置由行程開關(guān)通過剎車電機來控制,這樣能保證停止排料后不漏料?;y式排料機構(gòu)安裝在箱體底部,由減速剎車電機通過偏心機構(gòu)使活動框作往復運動,改變活動框與固定框之間的相對位置,使顆粒料排出箱體,最后由集料斗集中排出機外。
物料從上向下移動,而氣流由冷卻箱體底部進入,從頂部出風口排出后經(jīng)風管、集塵器最后通過風機排出。


